Ph: 330-351-3584 for EdenSAFE Homes, LLC

This is the best house in the world

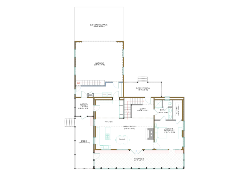
This package is a 3-4 Bedroom Southern Pines with two car garage and mudroom/utility. The main house footprint is 38 feet deep by 48 feet long plus and extra 10 feet in length for the Garage offset. This model has an extra deep sunspace- from feedback of our customers that the sunspace is the favorite room of their house.

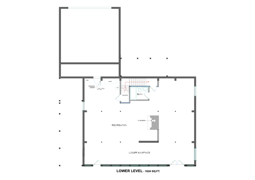
There is 2784 Square feet in the main and upper level and 1824 additional square feet in the basement. The two car garage and mudroom add an additional 780 square feet.

Options included are:
Stacks Image 17662
Walk-out lower level
The south lower level built with Gluelams to match the main level
Stacks Image 17663
Two car Garage with mudroom/utility
This is an addition off the Northwest corner to provide convenient entry from you cars to the kitchen, through the pantry/utility/mudroom.
Stacks Image 17664
Doubled East and West walls
Doubled East and West inner-shell walls for additional strength, energy-efficiency, and thermal mass. This package is suitable for climates up to Hudson Bay, Canada. Or easy to air-condition in Texas.
This package is in production and ready for shipment early May 2013. Contact Julius Toth at EdenSafe for details and price.
Stacks Image 17645
South West
Stacks Image 17646
South East
Stacks Image 17647
South Elevation
Stacks Image 17648
North Elevation
Stacks Image 17649
East Elevation
Stacks Image 17650
West Elevation
Stacks Image 17651
Main Level Floorplan
Stacks Image 17676
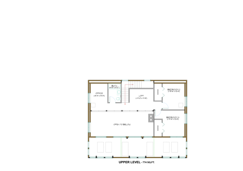
Upper Level Floorplan
Stacks Image 17678
Lower Level Floorplan
Stacks Image 17680
Main Level Axon
Stacks Image 17682
Upper Level Axon
Stacks Image 17684
Lower Level Axon